Since the SPC renovation plans were shared in December, there’s been an ongoing conversation about accessibility, which is the idea that an environment, product, or service can be used by everyone, regardless of disability. Given that SPC is designated as a naturally-occurring retirement community (NORC), and given that it houses thousands of residents, ages 0-100, it’s crucial that our buildings and grounds are truly welcoming for everyone and designed to keep us all safe and healthy. Even if you’re personally able to take a longer path or go up and down stairs right now, the reality is that this can change in the blink of an eye. And for older folks, every extra step represents a very real fall risk.
In an effort to better understand the concerns of some of our neighbors, we spoke to 90-year-old Judy, who lives in Building 3 in the G section. She has the unique distinction of living in SPC two separate times. She was an original tenant in 1960 and lived with two of her children in the co-op for nearly five years. Then she and her husband returned to the co-op 15 years ago. He was disabled at the end of his life and Judy says that walking an extra block would have limited where he could go.
Judy has been passionately advocating for better designs that make our buildings more accessible for everyone. We invited her to share her thoughts on this topic so that people who aren’t as personally worried about accessibility right now could better understand the issue.
This interview has been lightly edited for length and clarity.
The Seward Park Cooperator: What are your biggest concerns about accessibility in the proposed plan?
Judy: I'm not so young. I want to stay here for a long time, I hope. I take long walks every day. I don't use any mobility device, but I do carry a folding cane in my bag when the ground might be icy. I live in a section where there are a lot of people with wheelchairs and aids and it's very difficult for them to open the doors.
To get to the library, I would have to exit the new main exit, which goes almost to corner of Clinton and then backtrack up East Broadway to the library. Not a big deal for some, but for an elderly person, it is more difficult.
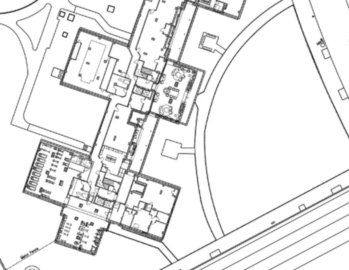
CURRENT BUILDING 3 DESIGN:

The rainbow path leads to the current entrance from East Broadway and Clinton
PROPOSED BUILDING 3 DESIGN:

The new straight path has stairs and takes you all the way to the corner of East Broadway and Clinton. And the J tower exit/entrance (which is closer to the library and park) has stairs, meaning it’s not accessible.
For a young person, they don't even think of that. I think about, Where can I cross the street safely? Is there going to be ice and snow? That type of thing. Everyone who lives here will eventually have the same problem [getting older]. I'm pretty active. I go out, but I'm thinking about kids and carriages, wheelchairs, and mobility aids.
What, specifically, are your concerns with respect to accessibility and the proposed renovation?
The normal place to look for an entrance to a large building is in the center. Our buildings are symmetrical, so that is particularly where a new person or emergency personnel would look. These new exits in a lesser part of the building are not intuitive.
Nothing is being done to make the side entrances more accessible to wheelchairs, shopping carts, carriages. Why can't we have automatic doors like the ones on front doors?
I know Building 3 best. I use car services and taxis a lot. The curved entrance from the main lobby goes to a spot on East Broadway with good approaches. The new exit goes almost to the corner of Clinton and East Broadway. This corner is especially hazardous in the evening hours, 4-7 p.m., and it is a difficult and dangerous place to enter a vehicle. [Note: A Seward Park Co-op resident was hit by a car at this intersection in February 2024.]
The alternative exit to East Broadway from the J tower has stairs so it’s not good for those with wheels, or for those, like me, with luggage and carts.
I worry about emergency personnel with stretchers. Buildings 1, 2, and 3 have corners to negotiate and Buildings 1 and 2 may also have to negotiate some difference in grades. Has this been tested? Even if it complies with ADA, I would feel safer if the stretchers could come through the existing center entrance. I can't even imagine them using the new, much smaller, entryways.
For the outdoor space, there are stairs from the upper to the lower level gardens at Building 3. To go from the lower to upper level, you use a fob to get out, then travel over to the path, through the new entrance into the new lobby, then go through the resident lounge, and then go outside to the upper garden.

This rendering of Building 1 shows the stairs between the upper to lower levels in the outdoor lounge, a design that will be replicated in other buildings. The only way to get from one level to the other if you can’t use the stairs is to travel all the way back through the building.
One of the videos on the website at the very end has one of the designers talking about the garden and how it will be a good place to go out in your robe with coffee. It feels so out of touch with the reality of our buildings and co-op.
What changes would you like to see to the proposed plan as they relate to accessibility?
Keep the main entrance lobby as the main entrance. Put in some seating so that people can wait for someone. Keep the doors automatic. Make the side doors and laundry room door easier to manage, maybe automatic. What bothers me is that they're spending so much and they haven't thought about the doors.
Are there parts of the proposed renovation that you like and feel good about it?
I like the new gym. Even though I don't expect to ever use it, I think it is a nice convenience for the residents. I like that the murals will be restored. I like that steam problems and window problems will be fixed, that floors will be polished, and I hope that new colors will be suitable.
🚨 A few actions you can take right now 🚨
Share this update, the insights from a paramedic, and the architects’ and designers’ professional assessment with any neighbors who aren’t aware of the flaws in the current plans.
Let the Board know that you’d be okay with a brief pause to refine the designs, find ways to reduce costs, and take shareholder feedback into account in a more structured and transparent way. You can email them directly at [email protected].
Ask five of your friends in SPC to add their name to this list (and select “yes” on the first question). Every new signature demonstrates to the Board that people still care about this topic and that shareholder support for making changes is increasing. We’re currently at 389 units, which is 25% of the total number of units that were eligible to vote in the last two Board elections (1,579). Let’s keep it going! 💪
